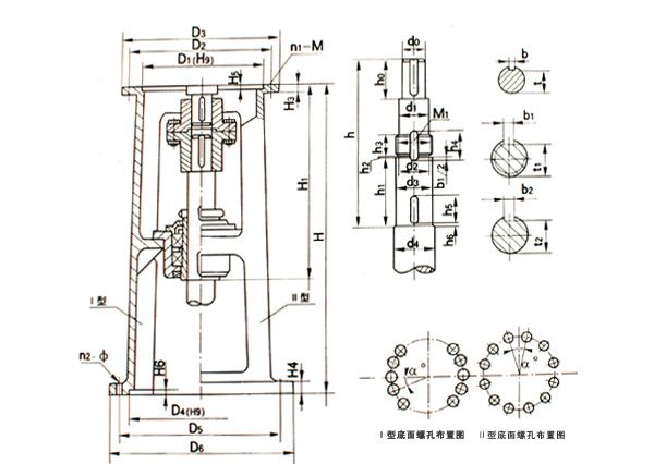
DJ支架系列

1.主要參數及尺寸
| 型號 | H1 | H3 | H4 | H5 | H6 | 輸入端接口 | 輸出端接口 | ||||||||
| D1 | D2 | D3 | n1-M | D4 | D5 | D6 | a˙ | n2-ф | |||||||
| DJ,LDJ30 | A | 320 | 15 | 20 | 4 | 6 | 140 | 160 | 190 | 4-M10 | 240 | 285 | 315 | 120 | 10-ф14 |
| B | 200 | 230 | 260 | 6-M12 | 1130 | 12-ф14 | |||||||||
| DJ,LDJ35 | A | 334 | 17 | 20 | 5 | 6 | 170 | 200 | 230 | 6-M10 | 260 | 320 | 360 | 120 | 10-ф14 |
| 6-M12 | 1130 | 12-ф14 | |||||||||||||
| DJ,LDJ40 | A | 334 | 17 | 20 | 4 | 6 | 200 | 230 | 260 | 6-M10 | 260 | 320 | 360 | 120 | 10-ф14 |
| B | 230 | 260 | 290 | 6-M12 | 1130 | 12-ф14 | |||||||||
| DJ,LDJ45 | A | 338 | 20 | 20 | 5 | 6 | 200 | 230 | 260 | 6-M10 | 260 | 320 | 360 | 120 | 10-ф14 |
| 6-M12 | 1130 | 12-ф14 | |||||||||||||
| DJ,LDJ55 | A | 372 | 22 | 24 | 6 | 6 | 270 | 310 | 340 | 6-M10 | 325 | 400 | 435 | 30 | 12-ф14 |
| B | 5 | 305 | 8-M12 | ||||||||||||
| DJ,LDJ65 | A | 447 | 22 | 24 | 6 | 6 | 316(320) | 360 | 400 | 8-M12 | 350 | 420 | 460 | 30 | 12-ф18 |
| 8-M16 | |||||||||||||||
| DJ,LDJ70 | A | 447 | 22 | 24 | 6 | 6 | 316(320) | 360 | 400 | 8-M12 | 350 | 420 | 460 | 30 | 12-ф18 |
| B | 5 | 320 | 8-M16 | ||||||||||||
| DJ,LDJ80 | A | 495 | 22 | 28 | 6 | 8 | 345 | 390 | 430 | 8-M12 | 380 | 455 | 495 | 30 | 12-ф18 |
| B | 5 | 360 | 410 | 460 | 8-M20 | ||||||||||
| DJ,LDJ90 | A | 519 | 22 | 28 | 7 | 8 | 400 | 450 | 490 | 12-M16 | 430 | 510 | 555 | 30 | 12-ф23 |
| 12-M20 | |||||||||||||||
| DJ,LDJ100 | A | 535 | 25 | 28 | 9 | 10 | 455(460) | 520 | 580 | 12-M20 | 480 | 560 | 600 | 22.5 | 12-ф23 |
| B | 5 | 470 | |||||||||||||
| DJ,LDJ110 | A | 660 | 30 | 28 | 11 | 10 | 520 | 590 | 650 | 12-M20 | 560 | 65 | 700 | 22.5 | 16-ф27 |
| B | 6 | ||||||||||||||
| DJ,LDJ120 | A | 660 | 30 | 38 | 11 | 10 | 520 | 590 | 650 | 12-M20 | 560 | 650 | 700 | 22.5 | 16-ф27 |
| DJ,LDJ130 | A | 790 | 45 | 40 | 12 | 10 | 680 | 800 | 880 | 12-M30 | 720 | 810 | 880 | 18 | 20-ф27 |
| B | 9 | ||||||||||||||
| DJ,LDJ140 | A | 790 | 45 | 40 | 12 | 12 | 680 | 800 | 880 | 12-M30 | 720 | 810 | 880 | 18 | 20-ф27 |
| 9 | |||||||||||||||
| DJ,LDJ150 | - | 790 | 45 | 45 | 14 | 12 | 820 | 940 | 1020 | 12-M30 | 840 | 940 | 1020 | 22.5 | 16-ф33 |
| 10 | |||||||||||||||
| DJ,LDJ160 | - | 810 | 50 | 50 | 14 | 12 | 820 | 940 | 1020 | 12-M30 | 840 | 940 | 1020 | 22.5 | 16-ф33 |
| 10 | |||||||||||||||
| DJ,LDJ180 | - | 910 | 55 | 50 | 14 | 12 | 960 | 1080 | 1020 | 12-M30 | 970 | 1080 | 1160 | 18 | 20-ф33 |
| 型號 | 攪拌軸軸端尺寸 | DJ型 | LDJ型 | ||||||||||||||||||||||
| h | h0 | h1 | h2 | h3 | h4 | h5 | h6 | d0 | d1 | d2 | M1 | d3(h9) | zd4 | b | b1 | b2 | t | t1 | t2 | H | 重量 | H | 重量 | ||
| DJ,LDJ30 | A | 250 | 53 | 103 | 3 | 13 | 22 | 30 | 3 | 30 | 32 | 32.8 | M35X1.5 | 35 | 40 | 8 | 6 | 6 | 26 | 31 | 31.5 | 550 | 46(kg) | 700 | 54(kg) |
| B | 254 | ||||||||||||||||||||||||
| DJ,LDJ35 | A | 253 | 53 | 113 | 3 | 15 | 24 | 40 | 3 | 35 | 42 | 42.8 | M45X1.5 | 45 | 50 | 10 | 6 | 6 | 30 | 41 | 41.5 | 600 | 79 | 750 | 89 |
| DJ,LDJ40 | A | 242 | 69 | 113 | 3 | 15 | 24 | 40 | 3 | 40 | 42 | 42.8 | M45X1.5 | 45 | 50 | 12 | 6 | 6 | 35 | 41 | 41.45 | 600 | 79 | 750 | 89 |
| B | 249 | ||||||||||||||||||||||||
| DJ,LDJ45 | A | 238 | 73 | 113 | 3 | 15 | 28 | 40 | 3 | 45 | 47 | 47.8 | M50X1.5 | 50 | 65 | 14 | 8 | 8 | 39.5 | 46 | 46 | 600 | 84 | 750 | 94 |
| DJ,LDJ55 | A | 274 | 80 | 118 | 4 | 15 | 28 | 40 | 3 | 55 | 57 | 57 | M60X2 | 60 | 65 | 16 | 8 | 8 | 49 | 56 | 56 | 660 | 151 | 760 | 157 |
| B | |||||||||||||||||||||||||
| DJ,LDJ65 | A | 333 | 87 | 143 | 4 | 18 | 32 | 50 | 3 | 65 | 71 | 72 | M75X2 | 75 | 80 | 18 | 10 | 10 | 59 | 59 | 70 | 720 | 171 | 870 | 291 |
| DJ,LDJ70 | A | 327 | 87 | 143 | 4 | 18 | 32 | 50 | 3 | 70 | 71 | 72 | M75X2 | 75 | 80 | 20 | 10 | 10 | 62.5 | 69 | 70 | 720 | 171 | 870 | 181 |
| B | |||||||||||||||||||||||||
| DJ,LDJ80 | A | 375 | 91 | 163 | 4 | 18 | 32 | 60 | 3 | 80 | 81 | 82 | M85X2 | 85 | 90 | 22 | 10 | 10 | 71 | 79 | 80 | 785 | 209 | 935 | 219 |
| B | 340 | ||||||||||||||||||||||||
| DJ,LDJ90 | A | 367 | 125 | 168 | 4 | 20 | 36 | 60 | 3 | 90 | 91 | 92 | M95X2 | 95 | 110 | 25 | 12 | 12 | 81 | 89 | 90 | 805 | 266 | 955 | 276 |
| DJ,LDJ100 | A | 348 | 134 | 178 | 4 | 24 | 42 | 60 | 3 | 100 | 111 | 112 | M115X2 | 115 | 125 | 28 | 14 | 14 | 90 | 409 | 109.5 | 820 | 347 | 1020 | 362 |
| B | |||||||||||||||||||||||||
| DJ,LDJ110 | A | 456 | 155 | 178 | 4 | 24 | 42 | 60 | 3 | 110 | 112 | 112 | M115X2 | 115 | 125 | 28 | 14 | 14 | 100 | 109 | 109.5 | 1100 | 533 | 1150 | 537 |
| B | |||||||||||||||||||||||||
| DJ,LDJ120 | A | 456 | 155 | 178 | 4 | 24 | 42 | 60 | 3 | 120 | 122 | 122 | M125X2 | 125 | 140 | 32 | 14 | 14 | 109 | 119 | 119.5 | 1100 | 533 | 1150 | 557 |
| DJ,LDJ130 | A | 570 | 197 | 208 | 4 | 28 | 46 | 70 | 3 | 130 | 135 | 137 | M140X2 | 140 | 150 | 32 | 14 | 14 | 119 | 132 | 134.5 | 1200 | 723 | 1400 | 754 |
| B | 570 | ||||||||||||||||||||||||
| DJ,LDJ140 | A | 570 | 197 | 208 | 4 | 28 | 46 | 70 | 3 | 140 | 145 | 147 | M150X2 | 150 | 160 | 36 | 16 | 16 | 128 | 142 | 144 | 1200 | 743 | 1400 | 774 |
| DJ,LDJ150 | - | 根據減速機型號而定 | 210 | 208 | 4 | 32 | 46 | 70 | 3 | 150 | 155 | 156 | M160X3 | 160 | 170 | 36 | 16 | 16 | 138 | 152 | 154 | 1200 | 765 | 1400 | 798 |
| DJ,LDJ160 | - | 210 | 227 | 4 | 32 | 50 | 80 | 3 | 160 | 165 | 166 | M170X3 | 170 | 180 | 46 | 16 | 16 | 147 | 162 | 164 | 1200 | 780 | 1400 | 820 | |
| DJ,LDJ180 | - | 235 | 242 | 4 | 36 | 56 | 90 | 3 | 180 | 185 | 186 | M190X3 | 190 | 200 | 45 | 18 | 18 | 165 | 180 | 182 | 1200 | 887 | 1400 | 933 | |
注:圖示所注“H”僅與樣本BLD系列減速機相配,如選用其他型號或其他廠家減速機,“H”需呀另行計算。增高后的 LDJ型機架其下部空間高度可容納205、206或207雙端面機械密封。
2、外形圖

DJ支架系列 0 本文被閱讀 5301 次








